The Student Agencies Building
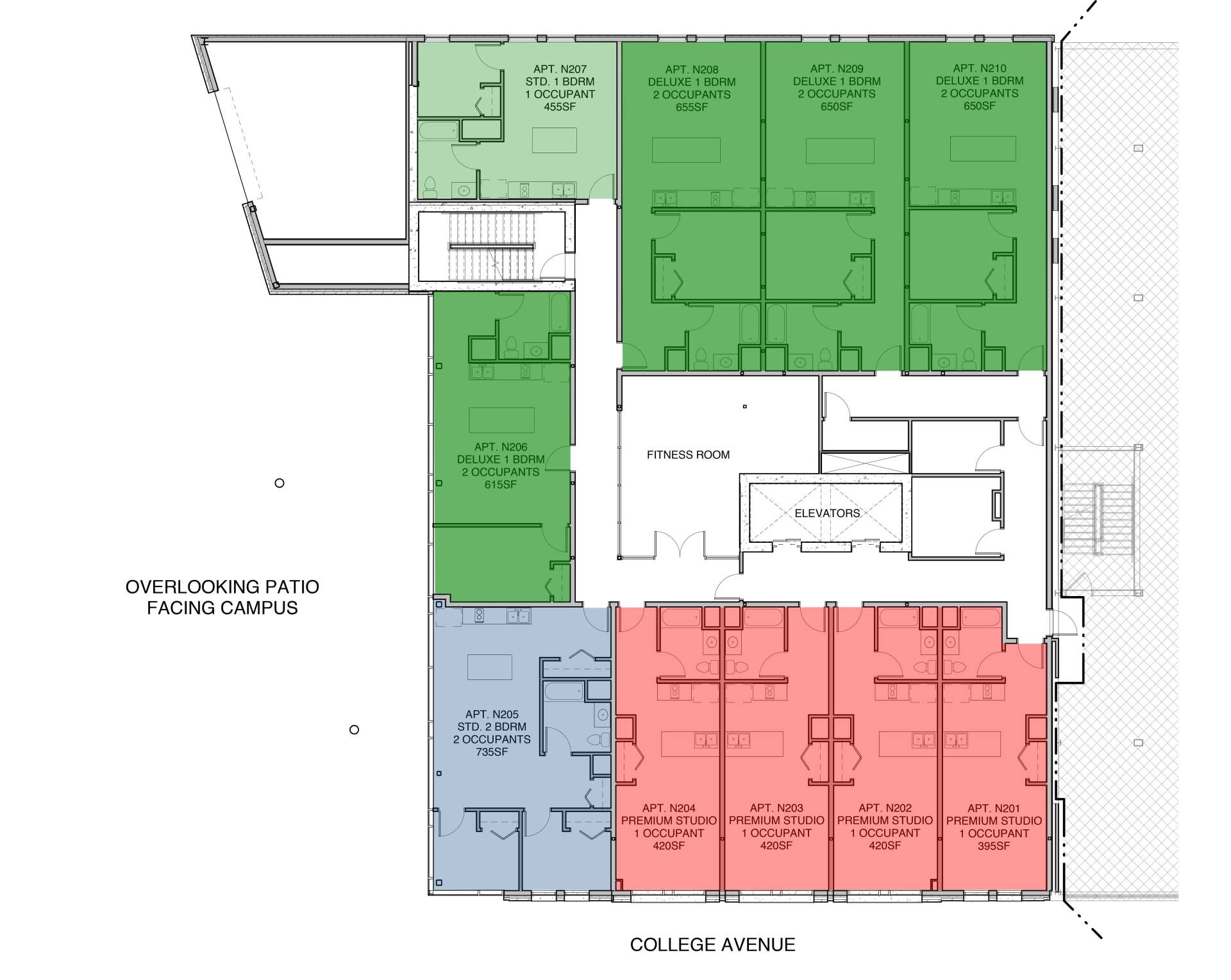
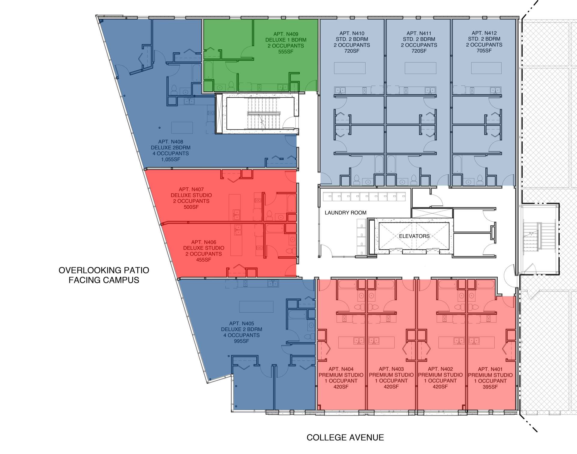
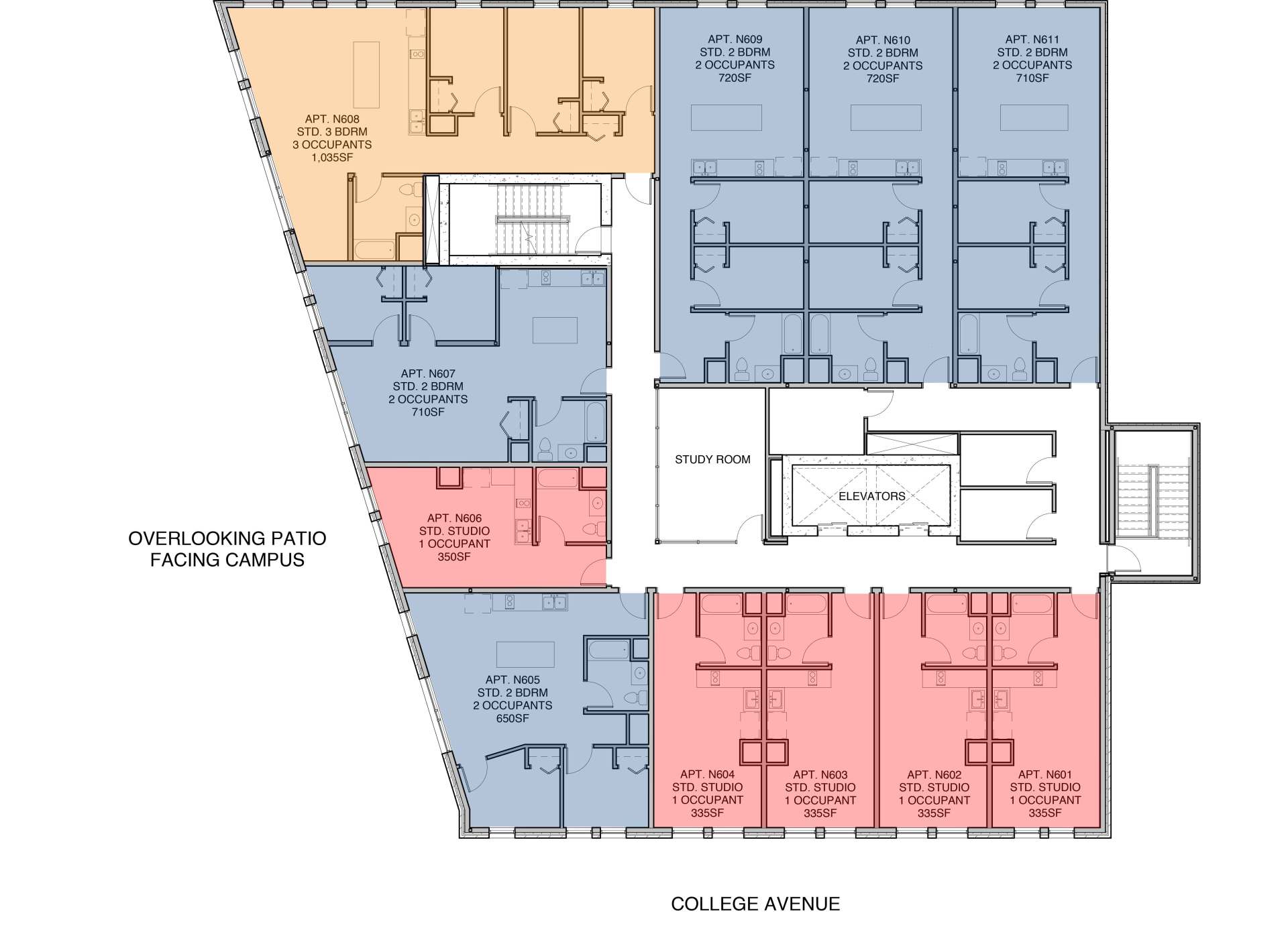
FLOOR PLANS
Whether you want to get your own place or room with a group of friends, we offer many options to best fit your needs! You can choose from a studio to a 3 bedroom unit, in multiple layouts at Standard, Premium, and Deluxe tiers. Premium (single occupancy room larger than a standard), and Deluxe (a larger room that can accommodate more than one person).
































